Maite filter
自清洗过滤器
免费定制方案 免费到厂考察 免费获取报价!
产品说明:全自动自清洗过滤器广泛适用于循环或非循环冷却水系统、热交换系统、中央空调系统、集中供暖系统、热水锅炉系统等,分别用来保护冷却设备、热交换装置、空调器、锅炉等。该设备适用行业面广,包括建筑、化工、电力、冶金、橡胶、造纸、轻纺、煤炭、食品等行业...
香蕉视频IOS在线观看过滤设备携手各行业打造满足香蕉视频APP污污软件免费需求产品的保障
全自动自清洗过滤器广泛适用于循环或非循环冷却水系统、热交换系统、中央空调系统、集中供暖系统、热水锅炉系统等,分别用来保护冷却设备、热交换装置、空调器、锅炉等。该设备适用行业面广,包括建筑、化工、电力、冶金、橡胶、造纸、轻纺、煤炭、食品等行业。
该设备要求流经过滤器的水温不可超过85℃。(特殊高温要求可具体说明)
工作原理:
水由进水口进入过滤器,**经过粗滤芯组件滤掉较大颗粒的杂质,然后到达细滤网通过细滤网滤除细小颗粒的杂质后,清水由出水口排出。在过滤过程中,细滤网的内层杂质逐渐堆积,它的内外两侧就形成了一个压差。当这个压差达到预设值时,将开始自动清洗过程:排污阀打开,主管组件的水力马达室和水力缸释放压力并将水排出;水力马达室及吸污管内的压力大幅下降,由于负压作用,通过吸嘴吸取细滤网内壁的污物,由水力马达流入水力马达室,由排污阀排出,形成一个吸污过程。当水流经水力马达时,带动吸污管进行旋转,由水力缸活塞带动吸污管作轴向运动,吸污器组件通过轴向运动与旋转运动的结合将整个滤网内表面完全清洗干净。整个清洗过程将持续数十秒。排污阀在清洗结束时关闭,增加的水压会使水力缸活塞回到其初始位置,过滤器开始准备下一个冲洗周期。在清洗过程中,过滤机正常的过滤工作不间断。

产品功能
全自动自清洗过滤器具有对原水进行过滤并自动对滤芯进行清洗排污的功能,且清洗排污时系统不间断供水。
全自动自清洗过滤器的清洗有两种控制方式:自动控制和手动控制。
自动控制:自动控制有定时和压差两个方式。在过滤时间定时器上设定过滤时间,当过滤时间到,启动排污,排污时间由排污时间定时器设定;同时控制系统实时将系统压差与用户设定的压差相比较,当系统压差达到设定压差时,过滤器也进行清洗排污,排污时间由排污时间定时器设定。排污时间到,停止清洗,系统恢复至其初始状态,为下一个过滤工序作好准备。
手动控制:将操作面板上的手动/自动选择开关拨到手动位置,过滤器进行排污。
用户可根据需要选择两种控制方式,具体操作见后面的操作部分。
产品特点
1) 过滤精度默认为100微米,且从50至3000微米可选,过滤面积大,纳污量高,用户可根据实际工况定制。
2) 清洗方式简单,且清洗循环电子监控,可实现自动清洗排污。。全自动自清洗过滤器控制系统中的各参数均可调节。
3) 设有电机过载保护,可有效保护电机。
4) 具有在清洗排污时不间断供水、无需旁路的特点,且清洗时间短,排污耗水量少,不超过总流量的1%。
5) 维修性强、安装拆卸简便易行。
6) 与用户管线的连接方式为法兰连接,法兰采用国标法兰
技术性能参数
型号
参数 | N 03 | N 04 | N 05 | N 06 | N 08 | N 10 | N 12 | N 14 | N 16 | N 18 | N 20 | N 24 | ||||
工作电压 | 交流380V50Hz | |||||||||||||||
功率(kW) | 0.25 | 0.25 | 0.25 | 0.25 | 0.37 | 0.37 | 0.37 | 0.55 | 0.75 | 0.75 | 2.20 | 2.20 | ||||
经济流量(m³/h) | 45 | 65 | 105 | 150 | 260 | 410 | 590 | 800 | 1050 | 1320 | 1630 | 2350 | ||||
工作压力(MPa) | 0.1 | |||||||||||||||
工作压力(MPa) | 1.0 | |||||||||||||||
过滤面积(cm²) | 1165 | 1367 | 2095 | 3014 | 5270 | 7867 | 11414 | 15552 | 20344 | 25751 | 31786 | 42295 | ||||
进出口公称通径(mm) | DN80 | DN100 | DN125 | DN150 | DN200 | DN250 | DN300 | DN350 | DN400 | DN450 | DN500 | DN600 | ||||
排污阀口公称通径(mm) | DN40 | DN40 | DN40 | DN40 | DN40 | DN50 | DN50 | DN65 | DN80 | DN80 | DN80 | DN80 | ||||
排污时间(秒) | 10~60 | |||||||||||||||
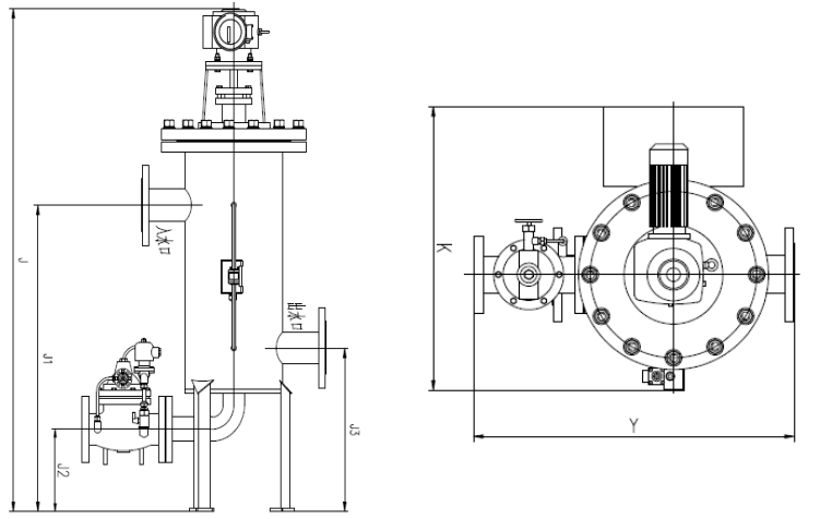
外形尺寸
尺寸参数表

产品展示







运行效果
eb09e037f7f4254359f1b785b773006f
香蕉视频IOS在线观看过滤设备携手各行业打造满足香蕉视频APP污污软件免费需求产品的保障
| 设备原理: | 拦截吸附 | 设备型号: | MZX-N |
| 设计压力: | 1.0mpa | 额定流量: | 15~3200m3/h |
| 设备材质: | 碳钢 304不锈钢 | 滤网材质: | 304楔形网 |
| 过滤精度: | 50~200um | 适用温度: | 60℃ |
| 设备功率: | 0.75~5.5kw | 控制单元: | PLC 、单片机 、继电器 |
| 反洗方式: | 压差控制 、 时间控制 | 适用范围: | 循环或非循环冷却水系统、热交换系统、中央空调系统、集中供暖系统、热水锅炉系统 |
香蕉视频IOS在线观看过滤设备携手各行业打造满足香蕉视频APP污污软件免费需求产品的保障